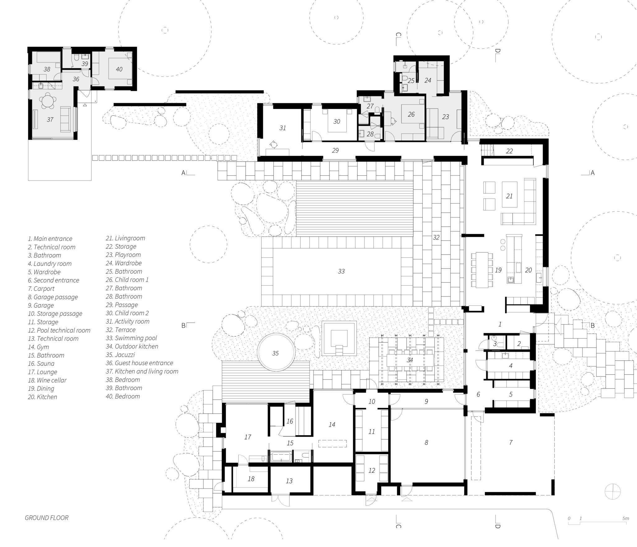
RUMSBESKRIVNING
ENTRÉ MED AVHÄNGNING
Rejäl entré med sittplats och avhängning. Platsbyggd sittbänk med förvaring .
Stenkeramik på golvet, som för övrigt ligger genomgående på nedre plan.
(Imola Conproj 120x120 cm) Teknikrum.
GÄSTWC
Gästwc med vägghängd toalett och tvättställ.
TVÄTTRUM
Två tvättmaskiner och två torktumlare från Miele (2018). Torkskåp Electrolux (2018)
Skåpsinredning och garderober (SieMatic) med vask och gott om förvaring. Perspektivfönster.
Här finns ytterligare en kyl samt en kombi kyl/frys från Gaggenau.
KLÄDRUM
Alla familjers dröm! Fantastisk inredning med plats för klädvård. Perspektivfönster.
ENTRÉINGÅNG TVÅ VIA CARPORT
Välgenomtänkt med ytterligare en entré via carport.
Carport med plats för två bilar med stort takfönster. Ribbpanel i taket i oljad ek.
Spolights i tak och elbilsladdare.
GARAGEPASSAGE
Via passage in mot relaxavdelningen med glasade väggar mot garaget döljs det integrerade dubbelgaraget. Garaget är placerat med access till carporten .
FÖRRÅDSRUM MED TEKNIK RUM
RELAXAVDELNING MED GYM
Här får ni en härlig, avskild plats att bara vara på. Träna i det stora hemmagymmet, koppla av i bastun eller ta ett långt bad i det fina badrummet som också har en dubbel dusch, Jacuzzi, tvättställ och toalett – allt för att vardagen ska kännas lite lyxigare. Stort förråd med klädvård .
SÄLLSKAPSRUM MED VINRUM
Härligt avkopplingsrum med mindre kitchenette (SieMatic) och skjutdörrsparti ut till trädgård. Kyl från Gaggenau-2018.
Vinrum med temperatur-och fuktighetskontroll. En braskamin integrerad i väggen (gas).
KÖK MED VARDAGSRUM
Ett elegant, minimalistiskt kök med barhäng från SieMatic med dolda funktioner, rena linjer och tidlös design – för dig som inte kompromissar med varken stil eller kvalitet.
Spis, fyra ugnar varav två ångugnar, spisfläkt, mikrovågsungn, kyl och frys, två diskmaskiner och vinkyl. Två värmeskåp för tallrikar.
Maskinpark från Gaggenau-2018. Två av ugnarna från Gaggenau installerades 2025. Ett av värmeskåpen installerades 2025. Hetvattenkran (Cooker) finns.
Köket är integrerat med vardagsrummet som blir den självklara samlingsplatsen att umgås i. Platsbyggd inredning med inbyggd tv och öppen gaskamin. Platsbyggd bokhylla bakom en ”gömd” dörr. Skjutdörrspartierna från Schuco gör det möjligt att öppna upp och flytta utomhus så fort vädret tillåter.
SOVRUM MED BADRUM ENSUITE
Så härligt med eget badrum och klädvård. Sovrummet har egen walk-in-closet och ensuite badrum med vägghängd toalett, tvättställ och dusch.
SOVRUM MED BADRUM ENSUITE
Mysigt sovrum med trägolv från Dinesen och praktisk garderobsvägg. Badrum i ensuite med vägghängd toalett, tvättställ och dusch med turkosgrön mosaik.
SOVRUM
Sovrum med trägolv från Dinesen och praktisk garderobsvägg.
BADRUM
Badrum med vägghängd toalett, tvättställ och dusch i fin turkosgrön mosaik.
SOVRUM / ALLRUM.
Rummet kan även användas som allrum till barnen.
OVANVÅNINGEN ERBJUDER
En perfekt föräldraavdelning med komfort och avskildhet.
Mindre allrum med trägolv från Dinesen, platsbyggd inredning med garderob och skrivbord.
Masterbedroom med stort klädrum och ensuite badrum. Heltäckningsmatta både i sovrum och walk-in-closet.
Badrum som erbjuder både komfort och estetik med både badkar, stort duschrum, två tvättställ, vägghängd toalett och takfönster. Inredning och badkar från italienska Boffi. Platsbyggd inredning i walk-in-closet.
Både sovrum, badrum och allrum leder ut till den möblerbara balkongen.
.
GÄSTHUS
Friliggande gästhus med vardagsrum med kök (SieMatic). Maskinpark från Gaggenau-2023. Två sovrum och bad med vägghängd toalett, tvättställ och dusch. Trägolv från Dinesen i de två sovrummen. Stenkeramik i hall och vardagsrum/kök. Platsbyggda garderober och hallinredning.
ÖVRIGT
Hela huset styrs av ett KNX system (Zennio). Via telefon, iPad eller styrenheter i huset kan man kontrollera belysning, värme, AC, tv, audio, markiser, pooltäcke, dörrar, larm, övervakningskameror etc. Inbyggda gardinskenor (Silent Gliss) i alla rum.