RUMSBESKRIVNING
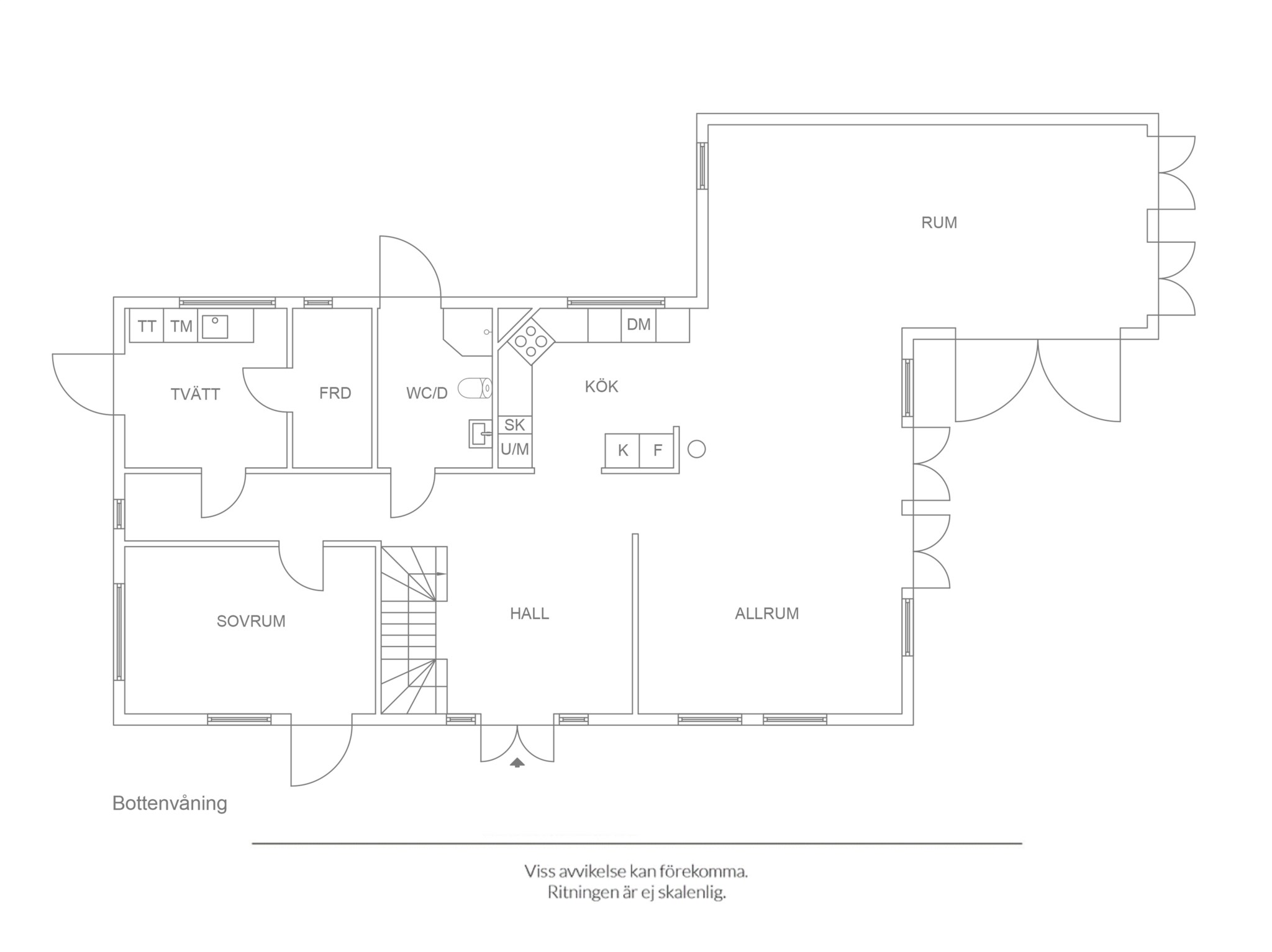
ENTRÉ
Här möts vi av en ljus och inbjudande entré med grått klinkergolv och goda ytor för avhängning.
KÖK
Modernt och påkostat kök (2019) signerat Siematic med, vacker Silestone bänkskiva, släta luckor, generösa arbetsytor och gott om förvaring. Köksön bryter av i en snygg mörk matt grå nyans och skapar en naturlig samlingspunkt med plats för barstolar och bjuder in till umgänge. Här finns genomtänkta detaljer och en exklusiv helhetskänsla med, vinkyl från Liebherr, spishäll med integrerad fläkt från Bora samt inbyggda vitvaror från Liebherr, Miele och Siemens. På golvet ligger askparkett.
MATPLATS
Ljus och härlig matplats med plats för stort bord. Vikbara glaspartier i flera sektioner suddar ut gränsen mellan inne och ute och skapar en fantastisk känsla när dörrarna öppnas upp mot terrass och stensatta poolområdet.i västerläge. På golvet ligger askparkett.
VARDAGSRUM
Ett luftigt och ljust vardagsrum med stora fönsterpartier och dubbla terrassdörrar som ger ett generöst ljusinsläpp i olika väderstreck. Braskaminen skapar både atmosfär och värme och blir en självklar mittpunkt i rummet. Gott om plats för större soffgrupp och sociala ytor. På golvet ligger askparkett.
SOVRUM BOTTTENPLAN
På entréplan finns ett sovrum som passar perfekt som gästrum, tonårsrum eller hemmakontor. På golvet ligger Junkers skeppsgolv.
MÖJLIGT EXTRA SOVRUM BOTTTENPLAN
Planlösningen erbjuder även möjlighet att skapa ytterligare ett sovrum på bottenplan. En flexibel lösning som passar den växande familjen eller den som önskar fler privata rum. På golvet ligger askparkett.
BADRUM BOTTTENPLAN
Helkaklat badrum med dusch från ca 2007. Praktisk placering på entréplan och smidig utgång mot trädgården vilket gör det enkelt efter pool och trädgårdsliv. Grått klinker på golv, sandfärgat kakel på väggar. Tvättställ med badrumskommod och vägghängd WC.
TVÄTTSTUGA
Rejäl tvättstuga renoverat 2023, JKE design med vit stilren inredning och bra med förvaring. Tvättmaskin och torktumlare från Miele. Här finns även plats för torkhängning samt teknik och inbyggd garderob når man härifrån. Klinker på golv i läcker träimitation.
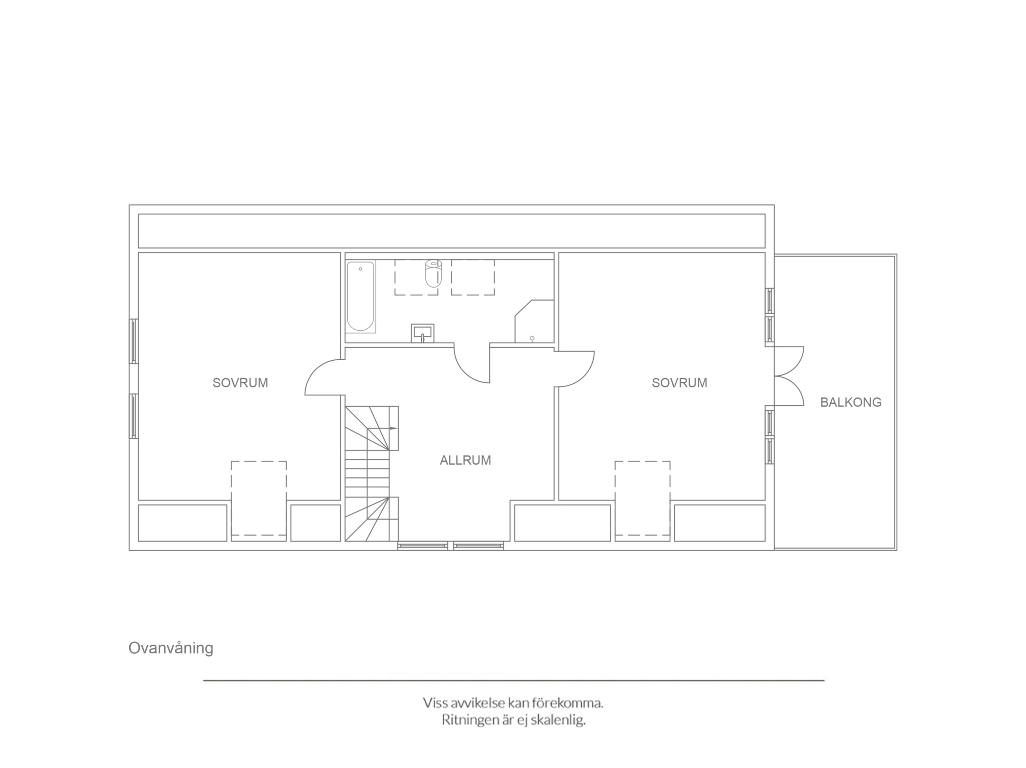
ALLRUM OVANPLAN
Praktiskt extra allrum i kupa med fint ljus från dubbla fönster. Perfekt som tv -rum, lekyta eller arbetsplats med en lugn och avskild känsla. På golvet ligger askparkett.
MASTER BEDROOM "EN-SUITE" MED BALKONG
Rofyllt generöst sovrum med öppet upp i nock och bra ytor för säng och förvaring. Här finns det gott om plats att möblera upp och göra sovrummet mer än bara ett sovrum. Härifrån när man även balkongen genom två vackra glasade pardörrar och kvällarna här är minst sagt magiska då sista solstrålarna träffar en precis här. Och visst finns här stundvis havsutsikt, wow! Balkongen är även denna generös och har ett modernt glasat räcke för att behålla det genomgående moderna och rena intrycket. I sovrummet finns inbyggda garderober och härifrån når man även sitt egna badrum "en suite". På golvet ligger askparkett.
BADRUM "EN SUITE"
Stort helkaklat badrum renoverat 2020 med inredning från bland annat Dansani och INR. Här finns generös dubbelkommod med dubbla tvättställ, badkar med spakänsla, vägghängd WC och dusch. Takfönster ger fint dagsljus och extra rymd för rummet. Naturfärgat kakel på golv och klinker på väggar.
SOVRUM 2 OVANPLAN
Generöst sovrum med öppet upp i nock, detta rum kan med enkelhet göras om till två om så önskas. På golvet ligger askparkett.
UTEPLATS OCH POOL
Utemiljön får en att tappa andan, väldigt mysig och genomtänkt. En oas att bara landa i med ljudet av havsbrus i bakgrunden och enbart någon minuts promenad via stigen utanför ner mot Kämpingestranden. Stenlagd terrass med gott om plats för både loungemöbler och matgrupp. Poolområdet skapar en riktig semesterkänsla hemma och binds fint samman med trädgårdens grönska och naturliga nivåskillnader.
GARAGE
Rymligt garage med plats för en bil samt med gästhus förberett för kök och dusch med WC. Här finns även goda ytor för hobby och praktisk förvaring.