RUMSBESKRIVNING
BIAREA & ÖVRIG YTA
Biarea i uterum om ca 29 kvm samt i förråd om ca 12 kvm. Boarea i gästhus om ca 24 kvm.
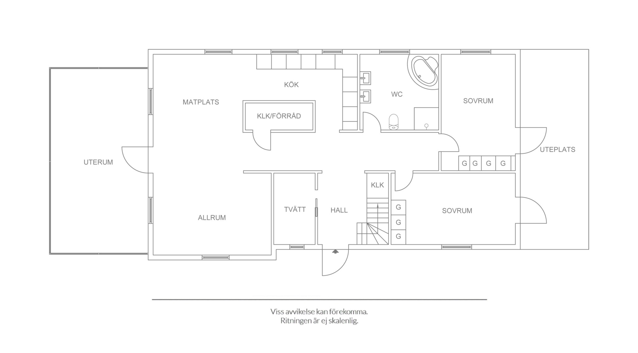
ENTRÉ
Stor och välkomnande hall med mörk klinker på golv och vita väggar. Goda avhängningsmöjligheter vid entrén samt ytterligare förvaringsmöjligheter i nisch under den platsbyggda trappan.
HALL
Inre hall med ekparkett på golv och vita väggar. Spotlights i tak och goda förvaringsmöjligheter i stor klädkammare.
TVÄTTSTUGA
Mörk klinker på golv och vita helkaklade väggar. Tvättmaskin (Bosch, 2022) och torktumlare (Cylinda, 2022), god arbetsyta på vit bänkskiva samt skåp och hyllsystem för förvaring. Golvvärme.
KÖK
Snyggt renoverat kök beläget i semiöppen planlösning mot vardagsrummet med ekparkett på golv och vita väggar med dovblå fondvägg. Vit köksinredning samt vit bänkskiva med grå mosaik som stänkskydd ovan. Kyl/frys med ismaskin (Samsung, 2022), spishäll (2018), mikrovågsugn (2018) och ugn (2018), vinkyl samt integrerad diskmaskin (Bosch, 2023). Spotlights i tak och fint ljusinsläpp från två stora fönster samt direkt anslutning till den generösa matplatsen.
VARDAGSRUM
Rymligt allrum med stort ljusinsläpp i tre riktningar. Ekparkett på golv och vita väggar med grön fondvägg. Allrummet erbjuder plats för såväl stor matplats som rejäl soffhörna och härifrån nås det stora, helglasade uterummet via helglasad altandörr.
UTERUM
Stort härligt uterum med laminatgolv och skjutbara, helglasade partier ut mot trädgården. Här finns plats för såväl matbord som lounge om man önskar. Uterummet ligger privat och insynsskyddat mot husets baksida och med utsikt över stora delar av den grönskande trädgården. Ett perfekt rum för förlängning av sommarsäsongen under både vår och höst.
MASTER BEDROOM
Tilltalande master bedroom med mörk klinker på golv och beige väggar. Stor plats för dubbelsäng och ljusinsläpp både via högt sittande fönster samt från helglasad altandörr ut mot terrassen på trädäck i soligt sydvästläge med stor markis. Goda förvaringsmöjligheter i skjutdörrsgarderob samt spotlights i tak och vattenburen golvvärme.
SOVRUM 2
Mörk klinkers på golv och vita väggar med vit, liggande träpanel på två av väggarna. Även här ett fint ljusinsläpp via högt sittande fönster samt från helglasad altandörr ut mot terrassen på trädäck i soligt sydvästläge med stor markis. Spotlights i tak och vattenburen golvvärme. Goda förvaringsmöjligheter i skjutdörrsgarderober.
BADRUM
Stort badrum med mörk klinker på golv och vita helkaklade väggar. WC, duschkabin, hörnbadkar, dubbelt tvättställ med kommod samt ytterligare förvaring i väggskåp. Spotlights i tak.
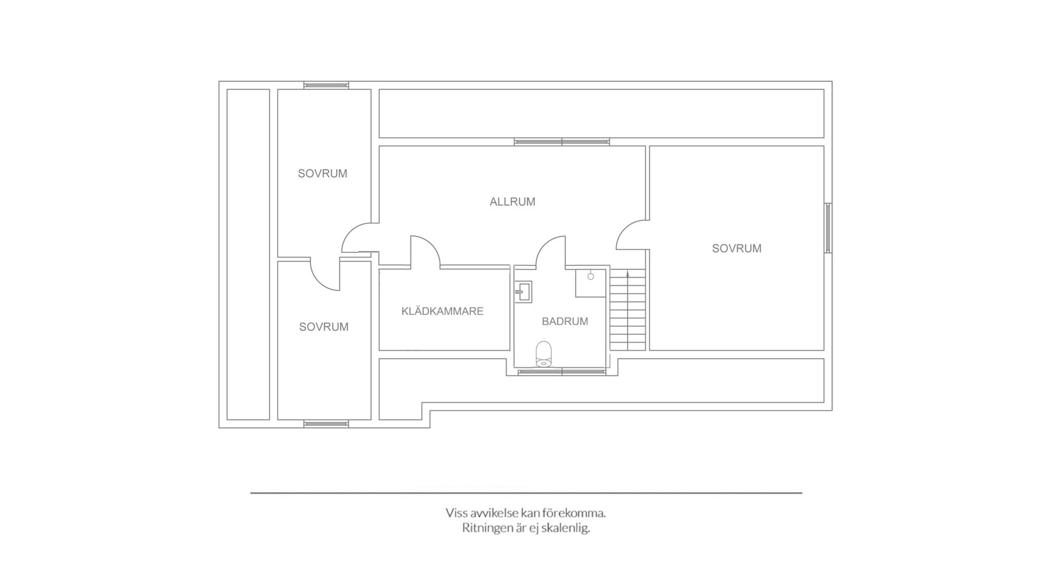
OVANPLAN
ALLRUM
Ekparkett på golv och vita väggar med spotlights i tak. Plats för soffgrupp. Goda förvaringsmöjligheter i stor klädkammare.
SOVRUM 3&4
På husets ena gavel ligger två av sovrummen. Bägge är rymliga och har ekparkett på golv och vita väggar. Spotlights i tak i det ena av rummen.
SOVRUM 5
På den andra gaveln ligger det stora, femte sovrummet. Även här ekparkett på golv, vita väggar och spotlights i tak. Härifrån har man fin utsikt över trädgården och gatan.
BADRUM
Badrum med mörk klinker på golv och vita, helkaklade väggar. WC, dusch med vikbara glasdörrar, handfat med kommod samt spegel med belysning ovan. Spotlights i tak och golvvärme.
GÄSTHUS
Rymligt gästhus om ca 24 kvm som byggdes 2017-2018. Här finns entréhall med goda avhängningsmöjligheter samt en öppen social yta med kök, allrum och sovrum med ekparkett på golv, vita väggar och spotlights i tak. Helkaklat badrum med WC, dusch, handfat med kommod och spegelskåp med förvaring.
I samma byggnad finns ett stort förråd om ca 12 kvm.
UTEMILJÖ
Insynsskyddad, fin och grönskande trädgårdstomt om ca 1 004 kvm som sträcker sig fint planerat runt huset. Här finns gräsmatta för lek och fina buskark, planteringar och träd för övrig grönska. Här finns terrass på mindre trädäck framför gästhuset samt en stor terrass på trädäck på husets framsida i soligt sydvästläge - här finns även installerat en stor markis för årets mest soliga dagar. På husets baksida finner man det stora uterummet om ca 29 kvm, ett perfekt ställe när man vill sitta ute men ändå inne.
PARKERING
Stor, singelbelagd uppfart för fyra till fem bilar. Här finns såklart laddare för elbil.