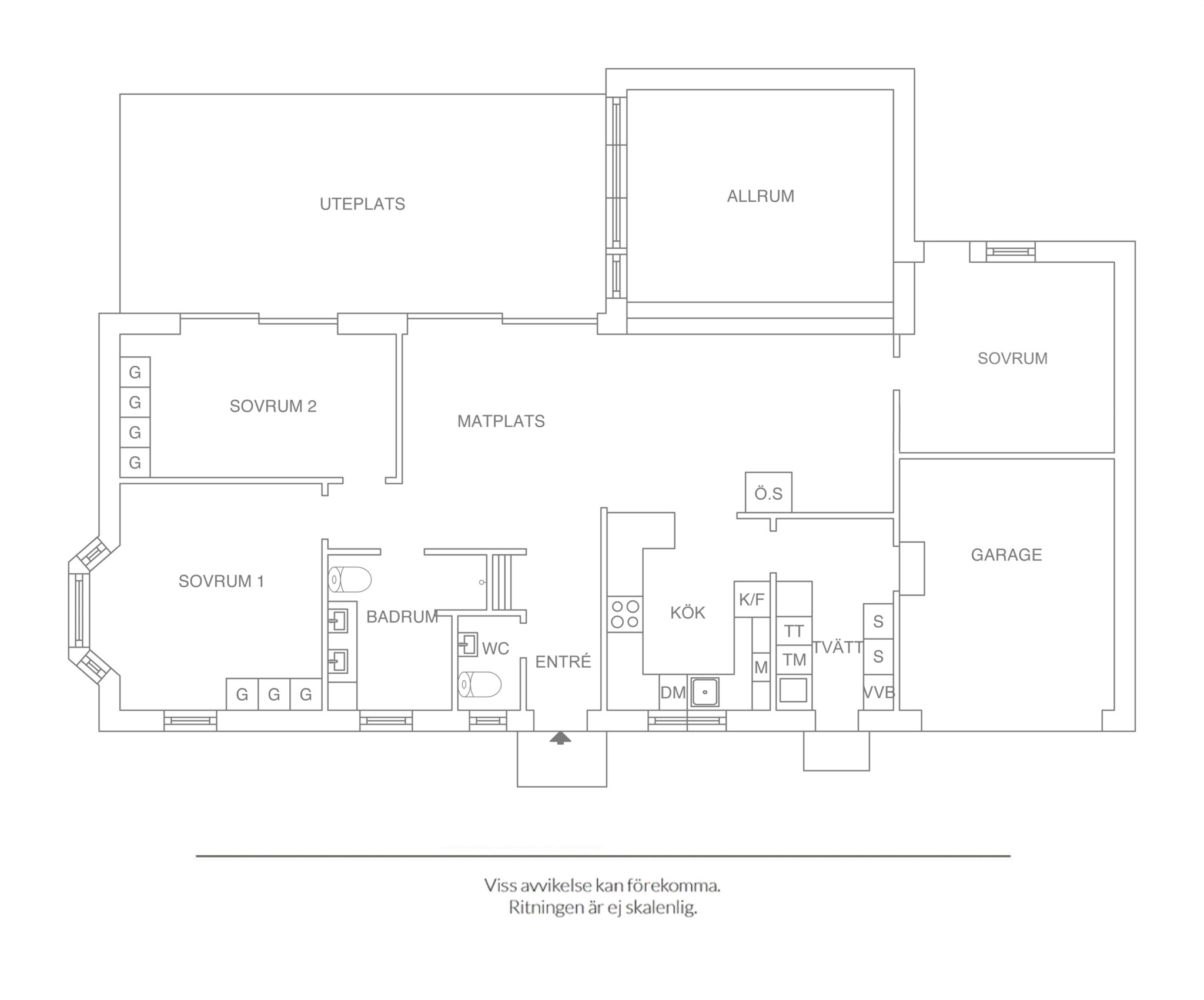
RUMSBESKRIVNING
HALL
Ljusa stora klinkerplattor på golv och vita väggar med panelbeklätt väggparti i nisch. Goda avhängningsmöjligheter.
GÄST-WC
Gäst-toalett med stora keramiska, klinkerplattor i marmor-look om 60x60 på golv och vita helkaklade väggar. WC, handfat med kommod och spegel. Elburen golvvärme.
KÖK
Vit köksinredning från Ikea med bänkskivor i vitt och stänkskydd av glas. Stora keramiska, klinkerplattor i marmor-look om 60x60 på golv och vita väggar. Ugn (Samsung 2023), kyl/frys (Samsung 2021), mikrovågsugn (Samsung 2023), diskmaskin (Samsung 2021), fläkt (Samsung 2021) och induktionshäll (Samsung 2021). Plats för barstolar för häng. Öppen och social planlösning mot den generösa matplatsen och loungen.
MATPLATS OCH LOUNGE
Stora keramiska, klinkerplattor i marmor-look om 60x60 på golv och vita väggar. Stor matplats och i förläningen plats för liten lounge vid den öppna spisen. Vid öppna spisen är en vägg panelbeklädd för extra ombonad känsla och vid matplatsen löper ett stort, skjutbart fönsterparti som öppnas ut mot den stenlagda terrassen.
VARDAGSRUM
Nedsänkt vardagsrum med vitpigmenterad ekparkett på golv och vita väggar. Perfekt för stor soffgrupp och med fint ljusinsläpp från fönsterbandet som löper längs ena väggen ut mot terrassen.
ÖPPET RUM
I anslutning till vardagsrum och lounge ligger ett rum som nu är öppet mot de andra. Här finns stora keramiska, klinkerplattor i marmor-look om 60x60 på golv och vita väggar och via altandörr nås den stensatta terrassen ut mot trädgård och terrassen i söderläge med pergola och jacuzzi. Detta rum kan enkelt stängas av och agera ytterligare sovrum om man önskar.
BADRUM
Helkaklat badrum med italiensk klinkers på golv 60x30 samt vita helkaklade väggar. Här finns WC, dubbla handfat med kommod, badkar, dusch, vägghängt skåp för förvaring och spegel med belysning. Elburen golvvärme och spotlights i tak.
MASTER BEDROOM
Lyxigt master bedroom med stora keramiska, klinkerplattor i marmor-look om 60x60 på golv och vita väggar. God plats för dubbelsäng och garderober för goda förvaringsmöjligheter. Skjutbart fönsterparti ut mot den stenlagda terrassen och trädgården.
SOVRUM
Vägg i vägg med master bedroom ligger det andra sovrummet. Här ligger vitpigmenterad ekparkett i enstav från Kährs golv och väggarna är vita. Stort, bra rum med plats för dubbelsäng även här. Fint ljusinsläpp via burspråk mot trädgården och fönster mot husets framsida samt goda förvaringsmöjligheter i garderober.
TVÄTTSTUGA
Välplanerad tvättstuga med stora keramiska, klinkerplattor i marmor-look om 60x60 på golv och vita väggar. Goda arbetsytor på bänkskiva, flertalet skåp för förvaring samt tvättmaskin och torktumlare (bägge från Samsung, 2021). Helglasad altandörr ut mot husets framsida och dörr ut mot garaget.
GARAGE
Snyggt inrett garage med italiensk klinkers 60x60 på golv och vita väggar. Spotlights i tak och garageport.
UTEMILJÖ
Grönskande trädgård fri från insyn tack vare den täta lagerhäggen som ramar in tomten. Stensatt uteplats som är delvis under takutsprång i anslutning till husets matplats och master bedroom. Mindre stensatt uteplats i anslutning till whiskeyrum. I trädgårdens ena hörna finns ytterliggare terrass på trädäck med pergola där man även låtit sänka ner jacuzzi. Stor gräsmatta finns för lek.
ÖVRIGT
Två ytterligare sovrum kan skapas i nuvarande garage samt i det öppna rummet i anslutning till vardagsrummet.