RUMSBESKRIVNING
ENTRÉ MED GWC
Rejält kapprum med tidlöst kalkstensgolv och praktisk nisch för avhängning. Fräsch gästtoalett.
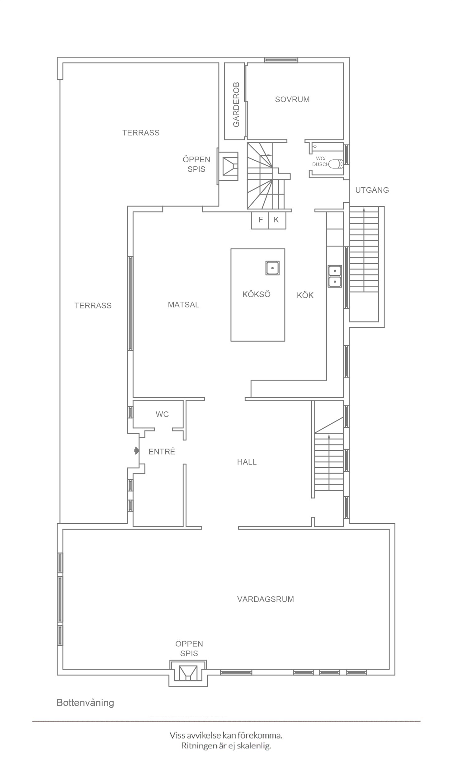
MÖBLERBAR HALL
Vidare bjuds vi in till en tidstypisk möblerbar stor hall med vackert orginalparkettgolv.
VARDAGSRUM
Ett underbart rum med samma vackra orginalparkettgolv. En plats för sociala sammankomster med öppen spis och fina tidstypiska teakfönster i olika väderstreck, här flödar ljuset in.
KÖK MED MATPLATS
Ett kök att umgås i, tidlöst och elegant köksdesign från SieMatic i klassisk och stilmedveten utformning. Köket är utrustat med diskmaskin, inbyggd ugn (Siemens) , spishäll, fläkt och inbyggd mikrovågsugn (Miele), espressomaskin från Miele och kyl & frys från Amana. Dubbla vaskar.
Den stora köksön fungerar som en avdelare mot matplatsen
Från köket når vi den skyddade uteplatsen under tak med kalkstensgolv och infravärme.
SOVRUM/ KONTOR
Bakom kök med egen ingång finns en mindre hall, garderobsvägg kaklat badrum med dusch och ett mindre sovrum/kontor. Praktiskt avdelning för gäster, tonårsbarn eller au pair.
OVANVÅNINGEN ERBJUDER
Via svängd snygg trappa kommer vi upp på den mer privata våningen. Den övre hallen används som ett allrum med tv idag med utgång till stor möblerbar balkong.
Två väl tilltagna sovrum till vänster med klädförvaring. Helkaklat ensuite badrum med dusch, toalett, dubbla handfat, golvvärme och handdukstork.
Utgång till balkong från Masterbedroom med vacker utsikt mot den prunkande trädgården.
Till höger om allrummet finns ytterligare två sovrum med kaklat badrum med dusch, bad, toalett och tvättställ.
TVÄTTRUM
Praktiskt med tvättmaskin och torktumlare. Utgång till balkong.
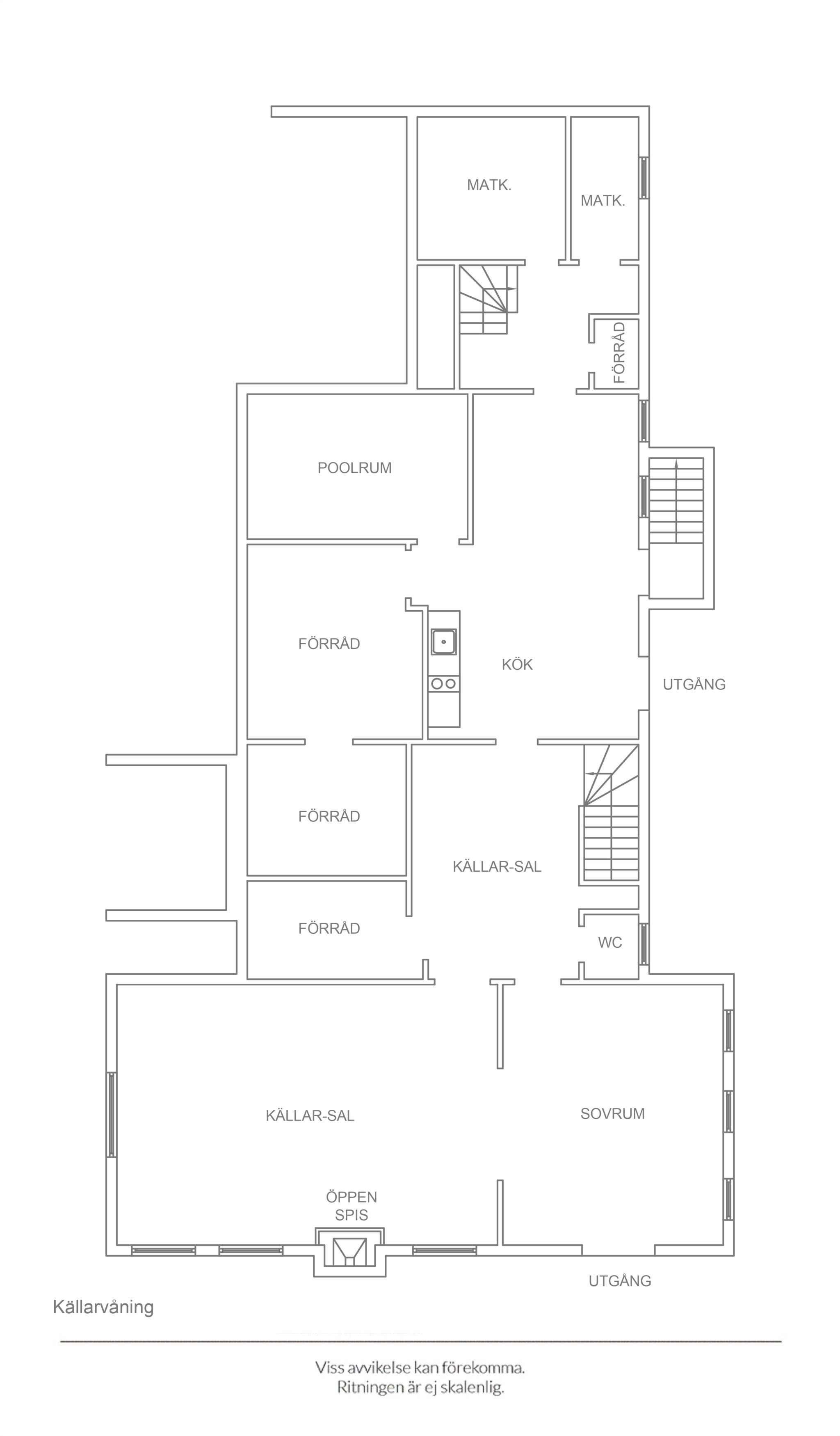
KÄLLARE
Den fräscha källaren har bl.a en stor källarsal med en murad öppen spis och ett sovrum med egen ingång från trädgården. På golvet ligger ett vackert naturstensgolv och väggarna är vitmålade. Den generösa takhöjden och fönster skänker ljus och kontakt med utemiljön och gör att källaren känns som boyta. I ena delen finns ett stilfullt Kitchenette med kyl, spisfläkt och vask och en generös matplats. Källaren erbjuder dessutom ett flertal förrådsutrymmen och ett pannrum.
ORANGERIE/UTERUM
Så fint och byggt 2020 med kalkstensgolv, högt i tak och fina spröjsade fönster.