RUMSBESKRIVNING
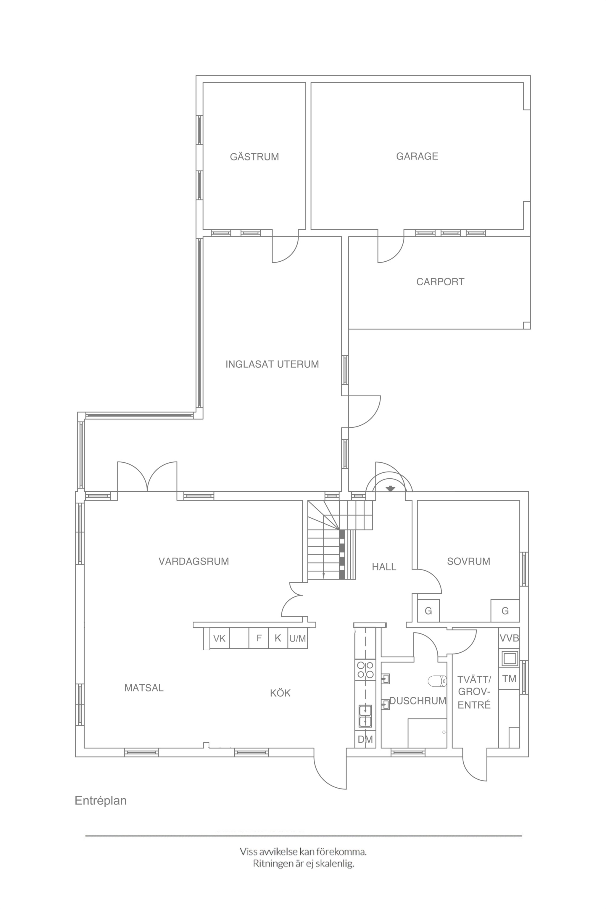
HALL
Ekparkett på golv och vita väggar. Goda avhäningsmöjligheter och en fin vy in mot kök och allrum.
ALLRUM
Ekparkett i enstav på golv och vita väggar. Gott om plats för stor soffgrupp och fint ljusinsläpp via de många fönstren. Dubbla glasdörrar ut mot uterum och trädgård.
KÖK & MATPLATS
I social planlösning mot allrummet ligger det nyligen renoverade köket och den stora matplatsen med plats för upp till 10 personer. Ekparkett på golv och vita väggar. Köksinredning i ljust grått utförande från HTH. Som kronan på verket en rejäl köksö i massivt trä från Kvänum - på såväl bänkskåp och köksö ligger sobra bänkskivor i Silestone. Trevlig braskamin av märket Wiking vid matplatsen och en fin vy ut över trädgården, altandörr ut mot den del av trädgården som vetter mot öster.
SOVRUM 1
Ekparkett i enstav på golv och vita väggar. Gott om plats för såväl dubbelsäng och garderober.
BADRUM
Helkaklat badrum med ljusgrå mindre klinkers på golv och vitgrått kakel på väggar. WC, dusch med vikbara glasdörrar, dubbla handfat och spegelskåp med belysning. Ljusinsläpp via fönster.
TVÄTTSTUGA & GROVENTRÉ
Plastmatta på golv och vita väggar. Tvättmaskin (Siemens) och torktumlare (Bosch), bänkskåp för förvaring med grå bänkskiva för god arbetsyta.
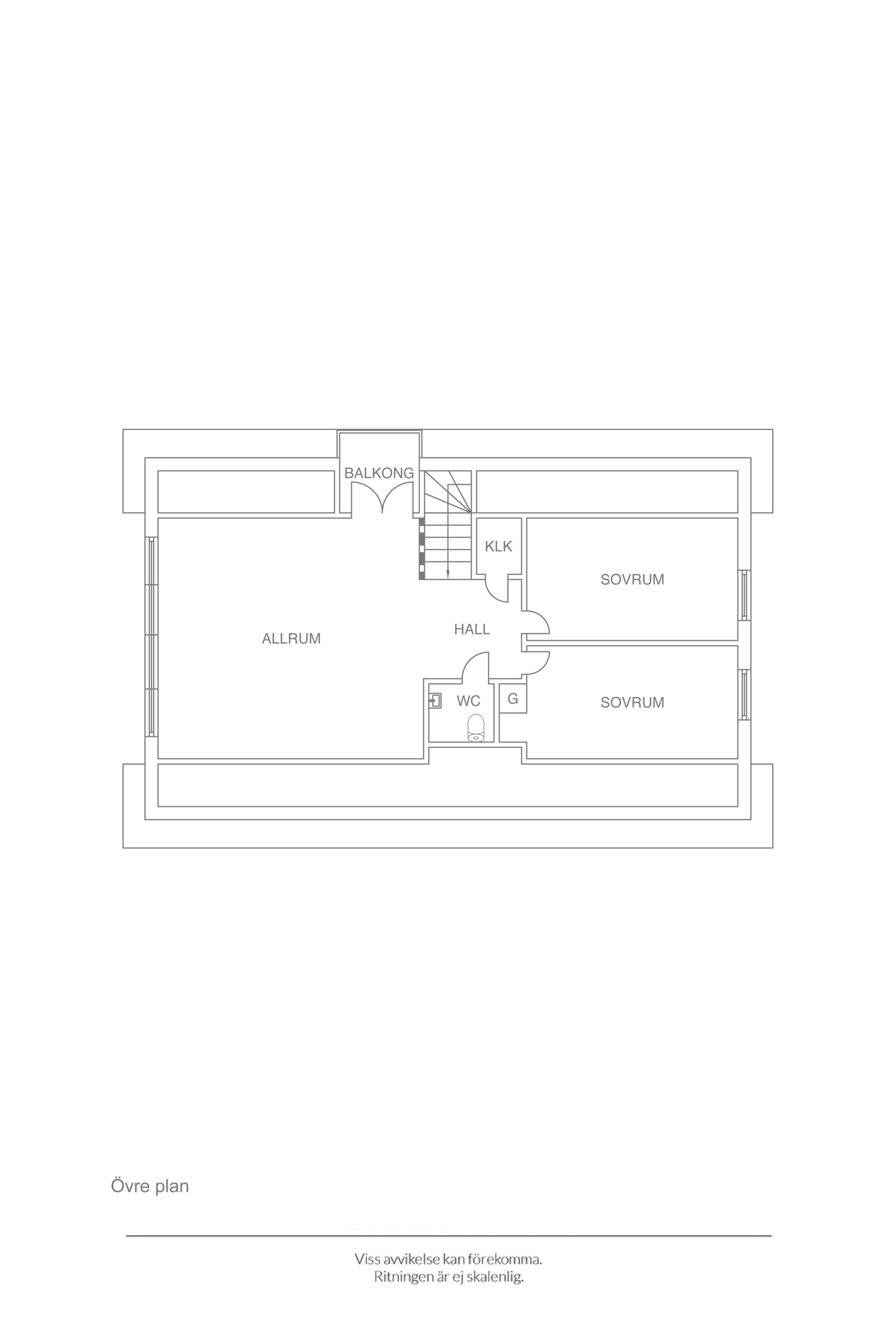
OVANPLAN
ALLRUM (&SOVRUM)
Stort härligt allrum med öppet upp i nock, ekparkett på golv och vita väggar. Rummet disponeras idag som ett stort master bedroom och kan enkelt delas av med en vägg om man önskar såväl sovrum som allrum här. Utgång till balkong i sydvästläge.
SOVRUM 3 & 4
På ovanvåningens ena gavel ligger det tredje och fjärde sovrummet med ekparkett på golv och ljusa väggar. Det ena av rummet har förvaringsmöjligheter i klädkammare.
WC
Plastmatta på golv och vita väggar. WC, handfat med kommod samt spegel med belysning.
UTERUM
Stort uterum i vinkel som nås från uppfarten, vardagsrummet och trädgråden. Trädäck på golv och vitmålade väggar samt skjutbara glaspartier ut mot trädgård och uteplats.
GÄSTRUM
I förlängningen av uterummet nås det separata gästrummet med ekparkett på golv och vita väggar. Plats för rejält möblemang och vy ut över trädgården.
TRÄDGÅRD
Grönskande och privat trädgårdstomt i soligt sydvästläge med gräsmatta, olika stensatta uteplatser och grönskande buskar och planteringar. Här kan solen avnjutas under dagens alla timmar.
PARKERING
Uppställningsplats för upp till fyra bilar varav en i carport. Ytterligare plats för en bil i garage.