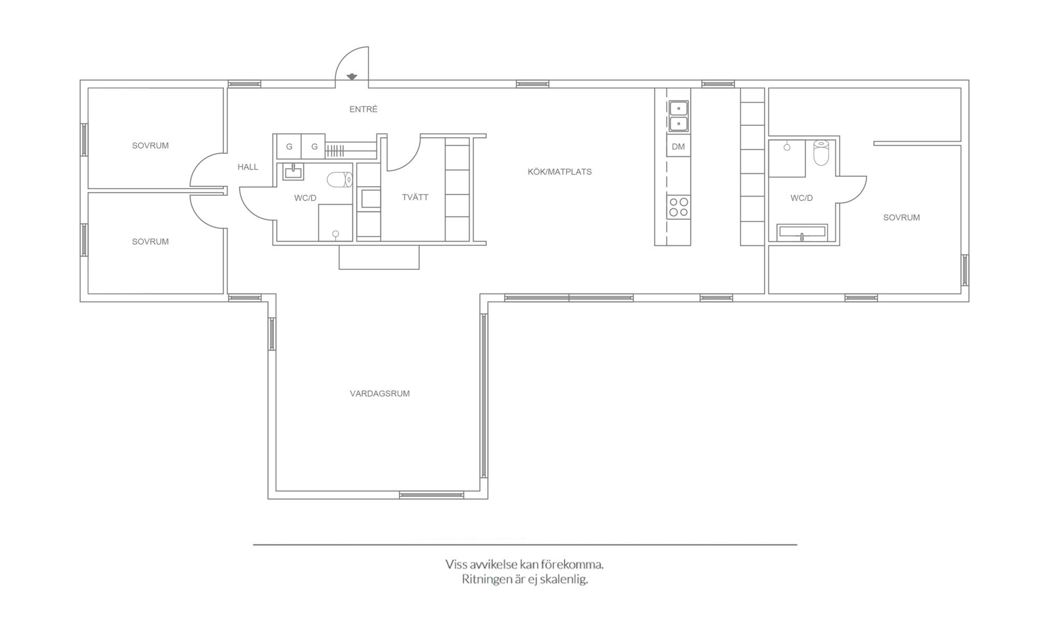
RUMSBESKRIVNING
HALL
Välkomnande entré med stora grå klinkers på golv och vita väggar. Goda förvaringsmöjligheter i platsbyggda garderober med sittbänk i rökfärgad ek, lokalt snickeri. Spotlights i tak från Occhio.
KÖK
Stort härligt kök med stora grå klinkers på golv och vita väggar. Platsbyggd köksinredning i mörkbetsad ek från lokalt snickeri med stor köksö och bänkskiva i smäcker carrara-marmor. Snygga och välplanerade lösningar med bl a skåp med hyllplan, lådor och pocketdörrar vilket lämpar sig perfekt för tex kaffestation. Integrerad kyl och frys (Grundig 2024), integrerad diskmaskin (Grundig 2024), ugn (Siemens 2024), mikrovågsugn (Siemens 2024) samt spis med integrerad fläkt (Bora 2024). På väggen mitt emot köket löper platsbyggda hyllplan i samma träslag som köksinredningen, även dessa från lokalt snickeri. Stor matplats för upp till 10 personer samt ljusinsläpp såväl från öst som från sydväst via de stora fönsterpartierna med utgång till terrassen. Stilrena spotlights i tak.
VARDAGSRUM
I semi-öppen planlösning ligger det ljusa och stora vardagsrummet med samma smakfulla, grå klinkers på golv och vita väggar. Stort ljusinsläpp via många stora fönsterpartier ut mot terrass och trädgård och bra möbleringsmöjligheter för stor loungegrupp. Den stilrena, öppna spisen är målad i samma färg som väggarna och blir pricken över i. En vacker detalj som bidrar med hög mysfaktor. Stilrena spotlights i tak.
MASTER BEDROOM
I separat del av huset ligger husets master bedroom. Här ligger vackert plankgolv i Douglas Gran från Chevron Parquet och väggarna är målade i vitt. Fint ljusinsläpp samt utgång via altandörr mot terrass och trädgård.
WALK-IN-CLOSET
Integrerad i master bedroom finns separat walk-in-closet. Även här plankgolv i Douglas Gran från Chevron Parquet samt vita väggar. Platsbyggd garderobsinredning i vitt utförande.
BADRUM EN-SUITE
Halvkaklat badrum i anslutning till master bedroom med stora, ljusgrå klinkers på golv och i dusch samt i övrigt vita väggar. Vägghängd WC, dusch med vikbara glasdörrar, handfat i carraramarmor med vit kommod. Måttbeställd spegel med infällda lampor från Flos över handfat. Handdukstork och spotlights i tak.
SOVRUM 2 & 3
I separat andra avdelning ligger de två andra sovrummen. Vackert plankgolv i Douglas Gran från Chevron Parquet samt vita väggar. Gott om plats för garderober.
BADRUM
Precis vid de två sovrummen ligger det andra badrummet. Även detta halvkaklat med stora, ljusgrå klinkers på golv och i dusch samt i övrigt vita väggar. Vägghängd WC, dusch med vikbara glasdörrar, handfat i carraramarmor med vit kommod samt handdukstork. Måttbeställd spegel över handfat samt spotlights i tak.
TVÄTTSTUGA
Grå klinkers på golv och vita väggar. Goda förvaringsmöjligheter i vita vägg- och bänkskåp samt tvättmaskin från Samsung.
UTEMILJÖ
Välplanerad och privat trädgård med gräsmatta samt stor, gjuten terrass med klinker i soligt sydvästläge. Murgrönestaket runt trädgårdssida. Välkomnande gjuten uppfart med plats för två bilar samt en utsmyckande, stor rabatt med bl a tall, ljung, juniper och viltgräs. Gjuten gång med singel runtom leder upp till husets entré. En fin och levande utemiljö.
ÖVRIGT
Förvaringsmöjligheter i fristånende förråd på husets baksida. Elbilsladdare. Vattenburen golvvärme i hela huset via frånluftsvärmepump.